Compártelo en

   

Rss

 

Mezcladora para Concreto. Solo Plan...

publicado por Daniel el 08/02/22

Informaciones generales

Precio : 980,00 $

Cuidad : 1416 Chiapas

Detalle del anuncio

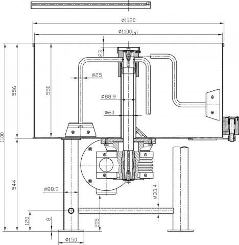
La mezcladora de brazos entrega una mezcla homogénea en menor tiempo. Los materiales del proyecto son de acero antidesgaste y Hierro para la estructura. Las paletas son reemplazables a fin de prolongar la vida útil del equipo.
Se venden solo los planos completos para fabricar el equipo Mezcladora para Concreto.
Potencia de Giro: 7.5 HP (5.5 kW)
Velocidad de Giro: 47 RPM
Capacidad Total: 500 Litros
Capacidad de Trabajo: 350 Litros
(1/2 Bulto de Cemento = 25Kg + agregados)
Salida: Manual
Rompesacos removible
Peso aproximado del equipo: 315 Kg
El diseño es del conocido Ing Teodoro Kresisch, y puede comprar los planos completos en formato pdf, visitando la página de Editorial Libroptica, en Libros Técnicos. La forma de pago es a través de MercadoPago y/o Paypal (usd, eur, mxn, brl) y btc.
También puede utilizar el siguiente link:
http://www.libroptica.com/MezcladoraParaConcreto.html

Contacto del anunciante

Daniel

Gestión del anuncio

Estadísticas del anuncio

Número de vistas : 203
Última visita el : 17/02 a las 14:03
Referencia : 133252
Envía el anuncio a un amigo :